Freitag, 20. Juni 2025
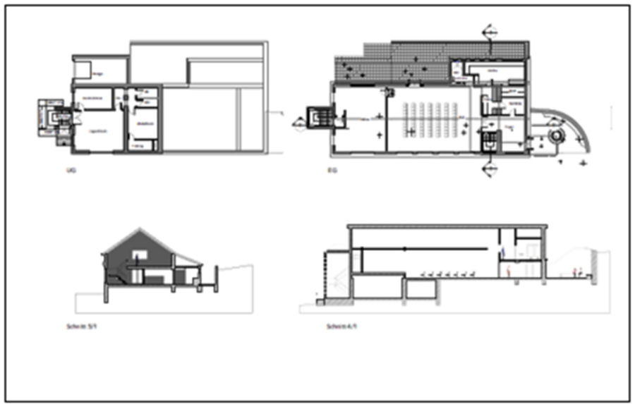
Bauvorhaben Npomukhaus Göllheim
Sehr geehrte Damen und Herren,
liebe Gönner*innen des katholischen Pfarrheims in Göllheim,
nach langen Jahren der Planung und Vorbereitung haben nun die Bauarbeiten am Nepomukhaus (Pfarrheim) in Göllheim begonnen.
Wir freuen uns sehr, dass es schon bald ein erneuertes Haus der Begegnung und der Gemeinschaft hier in Göllheim geben wird.
Neben einem neuen barrierefreien Eingang, neuen Toiletten sowie einer energiesparenden Heizung wird es weiterhin genügend Platz zum Feiern und Besprechungen geben.
Wir laden Sie schon heute ein, die Räumlichkeiten rege zu nutzen.
Die kalkulierten Kosten belaufen sich auf rund 500.000 Euro.
Wir als katholische Kirchenstiftung Göllheim können dies ohne die Unterstützung des Bistums Speyer und der Kirchengemeinde Göllheim nicht stemmen.
Der größte finanzielle Aufwand verbleibt weiterhin bei uns. Um diesen Aufwand zu reduzieren, bitten wir Sie um eine Spende.
Wir werden Ihre Unterstützung nach Fertigstellung der Baumaßnahme „Nepomukhaus Göllheim“ gerne in unserem Pfarrbrief auf Wunsch erwähnen.
Hier unser Spendenkonto:
Empfänger: Katholische Kirchenstiftung Göllheim
IBAN: DE81 5405 1990 0002 1012 28
Sparkasse Donnersberg
Verwendungszweck: Spende Pfarrheim Göllheim
Auf Wunsch stellen wir Ihnen für Ihren Spendenbetrag eine Spendenbescheinigung aus.
Im Namen der katholischen Kirchenstiftung Göllheim bedanken wir uns schon im Voraus für Ihre Unterstützung.
Mit freundlichen Grüßen
Josef Metzinger, Pfr.
Markus Schlosser, stellvertretender Verwaltungsratsvorsitzender Kath. Kirchenstiftung-Göllheim
Diese Meldung und weitere Nachrichten von Pfarrei Hl. Philipp der Einsiedler
finden Sie auf folgender Internetseite: www.pfarrei-goellheim.de

































































































